GIỚI THIỆU LÒ HƠI GHI TĨNH .
- Lò hơi ghi tĩnh là lò hơi sử dụng công nghệ đột trên mặt ghi cố định đưa nhiên liệu vào trong buồng lửa bằng phương pháp thủ công hoặc cơ khí. Nhiên liệu được đưa qua cửa lò vào ghi theo quy tắc nhiên liệu mới được đưa vào nằm trên nhiên liệu cũ đang cháy. Không khí cung cấp cho quá trình cháy được thổi từ gầm ghi lên qua lớp tro xỉ.
THÔNG SỐ KỸ THUẬT.
- Thiết kế, chế tạo, lắp đặt và vận hành theo tiêu chuẩn ASME, TCVN.
- Công suất hơi 1000 -120000kg/giờ.
- Áp suất thiết kế 5÷20 bar.
- Áp suất thử lạnh 1,5 lần áp suất thiết kế.
- Hiệu suất lò hơi 80 ± 2%.
- Nhiên liệu đốt Than đá, củi băm , viên nén , vỏ cọ dầu , bã điều…
- Khói thải lò hơi Đảm bảo môi trường cột B trong QCVN 19:2009/BTNMT.
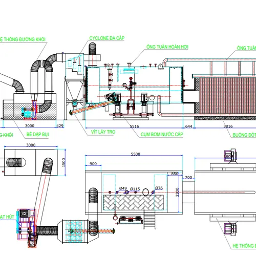
HỆ THỐNG THIẾT BỊ LÒ HƠI.
- Hệ cấp liệu:Được trang bị hoạt động một cách tự động hoặc bán tự động (bao gồm các thiết bị như xe múc, phễu chứa liệu, gầu tải,băng tải, vít tải..) được bố trí điều khiển một cách liên động, định lượng và tự động để cấp liệu cho lò hơi. Hệ cấp liệu còn được trang bị thêm Cân khối lượng để xác định lượng nhiên liệu tiêu hao cho lò hơi.
- Buồng đốt - thân lò: Được thiết kế để đốt triệt để nhiên liệu và hấp thu nhiệt tốt nhất cho quá trình sinh hơi. Bao gồm các thiết bị như: Hệ thống bec phun, buồng đốt, quạt gió cấp 1, quạt gió cấp 2, giàn ống hấp thụ nhiệt bức xạ, giàn ống sinh hơi đối lưu.
- Bộ hâm nước, bộ sấy không khí: Dùng để tận dụng nhiệt từ khói thải và làm tăng hiệu suất của lò hơi.
- Hệ thống xử lý bụi: sử dụng ventury
ƯU ĐIỂM
- Có hệ thống cấp nhiên liệu và thải tro xỉ tự động giúp giảm được nhân công vận hành tiết kiệm chi phí.
- Hiệu suất cao, quá trình đốt cháy ổn định.
- Tự động hoàn toàn trong khâu vận hành giúp giảm sức lao động, tiết giảm chi phí nhân công.
- Chi phí bảo trì, bảo dưỡng thấp, thời gian bảo trì, bảo dưỡng nhanh do có rất ít thiết bị phức tạp.

Xem thêm